市自然资源和规划局

网站首页 政府信息公开 互动交流
市自然资源和规划局>政府信息公开>规划批前公示
水质污染防治设备的制造建设项目规划方案批前公示
来源:市自然资源和规划局 时间:2025-11-10 13:52:55 浏览次数: 字号:[ ]

根据城乡规划管理有关规定,为广泛征求社会各界和市民的意见和建议,现按程序对江苏源盛环保设备有限公司-水质污染防治设备的制造建设项目规划方案批前公示。

一、项目概况

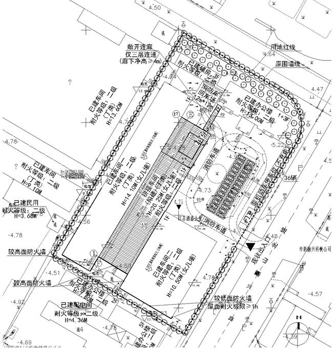
建设单位为江苏源盛环保设备有限公司。该项目位于宜兴经济开发区惠兴北路10号,具体范围:东为惠兴北路,南为江苏宜兴经济开发区投资发展有限公司,西为宜兴市海怡环保科技有限公司、宜兴市高欣铸造有限公司,北为道路。设计范围总用地面积约11463.8平方米,用地性质为工业。规划新建拼接车间及连廊,建筑面积约2947平方米(实际面积以建设工程规划许可证为准)

二、公示地点

    1.宜兴市自然资源和规划局网站(http://www.yixing.gov.cn/zrzyghj/index.shtml)

    2.基地现场

三、公示时间

    2025年11月11日——2025年11月20日

四、联系方式和意见反馈

联系地点:宜兴市自然资源和规划局(宜兴市解放路191号荆邑广场)

邮政编码:214200

联系电话:0510-87660813    0510-87669991(传真)

电子邮箱:343981921@qq.com

公示期间,如有意见或建议,请反馈我局(请注明本人身份、联系电话或地址)