市自然资源和规划局

网站首页 政府信息公开 互动交流
市自然资源和规划局>政府信息公开>规划批前公示
新建车间二批前公示
来源:市自然资源和规划局 时间:2021-12-09 08:44:05 浏览次数: 字号:[ ]

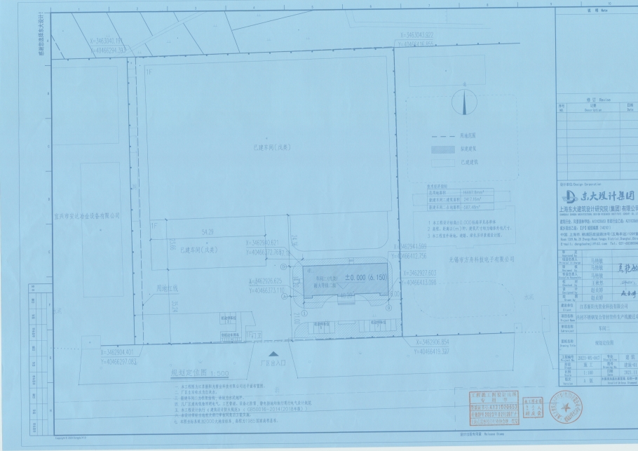
根据城乡规划管理有关规定,为广泛征求社会各界和市民的意见和建议,现按程序对新建车间二进行批前公示。
一、项目概况
建设单位为江苏新阳光管业科技有限公司,项目位于宜兴市张渚镇宇龙路8号。地块具体范围:东为方舟科技,南为南埠路,西为宜兴市劲旅纺织服装有限公司,北为空地。总用地面积16687.80平方米,用地性质为工业用地,申请扩建1栋车间,为4层,合计建筑面积约2417.16平方米(核定建筑面积以建设工程规划许可证为准)。
二、公示地点
1、宜兴市自然资源和规划局网站(http://www.yixing.gov.cn/zrzyghj
2、基地现场
三、公示时间
2021年12月09日 —— 2021年12月19日
四、鸟瞰图


联系方式和意见反馈
联系地点:宜兴市自然资源和规划局(宜兴市解放东路191号荆邑广场)
邮政编码:214200
联系电话:0510-87669931 ,0510-8769991(传真)
电子邮箱:yxghc@vip.163.com
公示期间如有意见或建议,请反馈我局(请注明本人身份、联系电话或地址)